Mehr anzeigen zum Thema Beschreibung
Beschreibung
Im Herzen von Weidenberg steht dieses attraktive Wohn- und Geschäftshaus, das 1958 erbaut und 1977 umfangreich saniert wurde. Die Immobilie wird als Kapitalanlage angeboten und erstreckt sich über ein ca. 245 m² großes Grundstück. Sie bietet Platz für fünf gut gepflegte Wohnungen sowie eine zusätzliche Gewerbeeinheit, die vielseitige Nutzungsmöglichkeiten eröffnet. Hinzu kommen fünf Parkplätze, die den Mietern und Kunden zur Verfügung stehen. Diese Kombination aus Wohn- und Gewerbefläche in zentraler Lage macht die Immobilie zu einer interessanten Investitionsmöglichkeit mit Potenzial für stabile Mieteinnahmen.
Die fünf Wohnungen werden über einen separaten Eingang und ein kleines Treppenhaus erschlossen. Während sich im 2. und 3. Obergeschoss jeweils eine modern geschnittene 2-Zimmer- und eine 3-Zimmer-Wohnung befinden, verfügt das Objekt im Dachgeschoss über eine zusätzliche 3-Zimmer-Wohnung.
Im Erdgeschoss befindet sich eine Gewerbeeinheit, die über einen Zugang von der Straße als auch über eine Verbindungstür vom Treppenhaus aus zu erreichen ist.
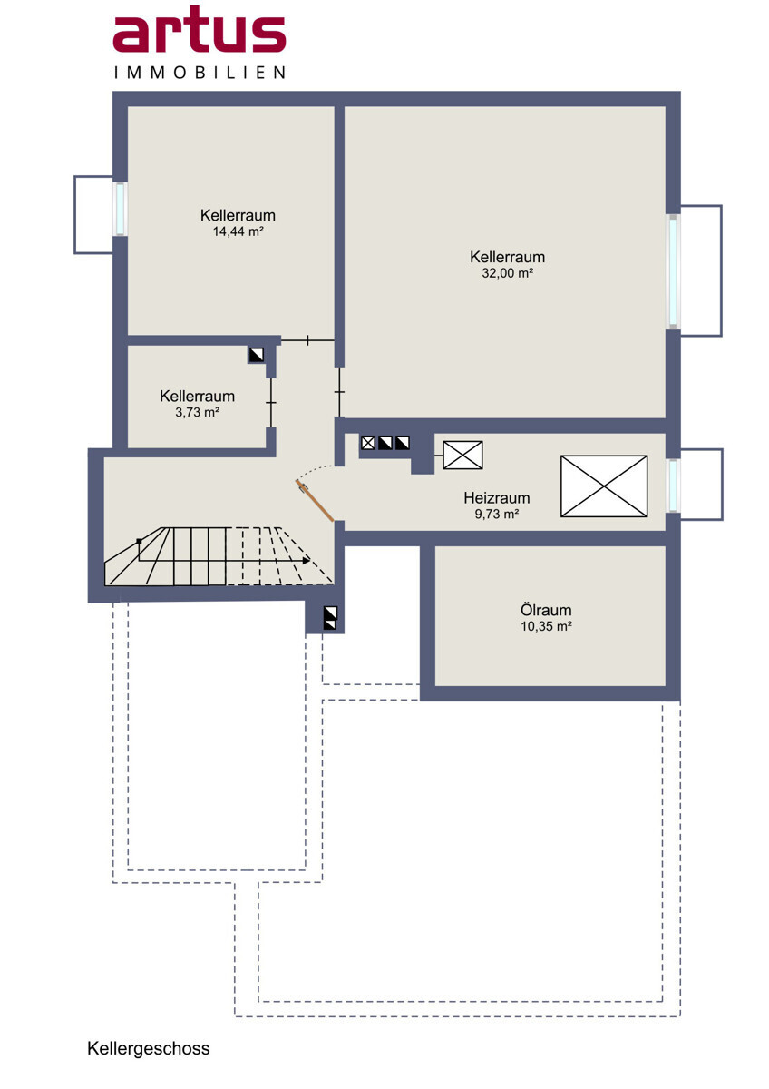
Die Erwärmung der Wohnungen erfolgt mithilfe von Nachtspeicherheizungen, was eine kosteneffiziente Möglichkeit darstellt, um während der günstigeren Nacht-Stromtarife Wärme zu speichern und tagsüber abzugeben. Für die Gewerbeeinheit wurde eine moderne Gasheizung installiert, die im Jahr 2007 eingebaut wurde. Zusätzlich gibt es im Kellerbereich sowohl einzelne Kellerabteile, die den Mietern zur Verfügung stehen, als auch Abstellmöglichkeiten für Fahrräder.
Der Zustand des Hauses ist aufgrund der vor ca. 11 Jahren erfolgten Komplettsanierung inklusive energetischer Sanierung als sehr gut zu bezeichnen. Zu den durchgeführten Arbeiten zählen unter anderem die Erneuerung der Heizung, der Dämmung und der Fenster, die sämtlichen modernen Standards entsprechen.
Die Mieteinahmen (Nettokaltmiete) dieses Objektes betragen derzeit ca. EUR 33360.- € pro Jahr. In der AFA wir das Objekt mit 3,3 % abgeschrieben.
Die fünf Wohnungen werden über einen separaten Eingang und ein kleines Treppenhaus erschlossen. Während sich im 2. und 3. Obergeschoss jeweils eine modern geschnittene 2-Zimmer- und eine 3-Zimmer-Wohnung befinden, verfügt das Objekt im Dachgeschoss über eine zusätzliche 3-Zimmer-Wohnung.
Im Erdgeschoss befindet sich eine Gewerbeeinheit, die über einen Zugang von der Straße als auch über eine Verbindungstür vom Treppenhaus aus zu erreichen ist.
Die Erwärmung der Wohnungen erfolgt mithilfe von Nachtspeicherheizungen, was eine kosteneffiziente Möglichkeit darstellt, um während der günstigeren Nacht-Stromtarife Wärme zu speichern und tagsüber abzugeben. Für die Gewerbeeinheit wurde eine moderne Gasheizung installiert, die im Jahr 2007 eingebaut wurde. Zusätzlich gibt es im Kellerbereich sowohl einzelne Kellerabteile, die den Mietern zur Verfügung stehen, als auch Abstellmöglichkeiten für Fahrräder.
Der Zustand des Hauses ist aufgrund der vor ca. 11 Jahren erfolgten Komplettsanierung inklusive energetischer Sanierung als sehr gut zu bezeichnen. Zu den durchgeführten Arbeiten zählen unter anderem die Erneuerung der Heizung, der Dämmung und der Fenster, die sämtlichen modernen Standards entsprechen.
Die Mieteinahmen (Nettokaltmiete) dieses Objektes betragen derzeit ca. EUR 33360.- € pro Jahr. In der AFA wir das Objekt mit 3,3 % abgeschrieben.
Mehr anzeigen zum Thema Ausstattung
Ausstattung
Erdgeschoss
Gewerbeeinheit mit 6-Räumen, WC, separater Eingang, Gasheizung
1.OG
2-Zimmer-Wohnung mit Küche, Flur, Wohnzimmer, Schlafzimmer und Bad mit Badewanne, Dusche und WC
3-Zimmer-Wohnung mit Wohnzimmer, 2 Schlafzimmer, Küche, Bad mit Badewanne, Dusche und WC
2.OG
2-Zimmer-Wohnung mit Küche, Flur, Wohnzimmer, Schlafzimmer und Bad mit Badewanne, Dusche und WC
3-Zimmer-Wohnung mit Wohnzimmer, 2 Schlafzimmer, Küche, Bad mit Badewanne, Dusche und WC
Dachgeschoss
3-Zimmer-Wohnung mit großem Wohn-Esszimmer und offener Küche, 2 Schlafzimmer, Bad mit Badewanne, Dusche, WC,
Das Objekt weist aktuell keinen Leerstand auf.
Gewerbeeinheit mit 6-Räumen, WC, separater Eingang, Gasheizung
1.OG
2-Zimmer-Wohnung mit Küche, Flur, Wohnzimmer, Schlafzimmer und Bad mit Badewanne, Dusche und WC
3-Zimmer-Wohnung mit Wohnzimmer, 2 Schlafzimmer, Küche, Bad mit Badewanne, Dusche und WC
2.OG
2-Zimmer-Wohnung mit Küche, Flur, Wohnzimmer, Schlafzimmer und Bad mit Badewanne, Dusche und WC
3-Zimmer-Wohnung mit Wohnzimmer, 2 Schlafzimmer, Küche, Bad mit Badewanne, Dusche und WC
Dachgeschoss
3-Zimmer-Wohnung mit großem Wohn-Esszimmer und offener Küche, 2 Schlafzimmer, Bad mit Badewanne, Dusche, WC,
Das Objekt weist aktuell keinen Leerstand auf.
Mehr anzeigen zum Thema Lage
Lage
Das Objekt befindet sich in Weidenberg, unweit des Rathausplatzes. Rund um das Objekt befinden sich verschiedene Einrichtungen des täglichen Bedarfs, kleinere Geschäfte und Lokale. Weidenberg ist eine Gemeinde mit ca. 6.000 Einwohnern im oberfränkischen Landkreis Bayreuth und Sitz der Verwaltungsgemeinschaft Weidenberg. Der Hauptort und Markt Weidenberg liegt im Nordosten des Landkreises Bayreuth im Tal der Warmen Steinach. Die nächstgelegene Großstadt ist Bayreuth, erreichbar über die Staatsstraße 2181 im Steinachtal oder über den Lankendorfer Berg und Seulbitz sowie mit der Bahn.
Mehr anzeigen zum Thema Sonstige Angaben
Sonstige Angaben
Der Makler-Vertrag mit uns und/oder unserem Beauftragten kommt durch die Bestätigung der Inanspruchnahme unserer Maklertätigkeit in Textform zustande, wie z. B. insbesondere die Unterschrift des Suchkundenvertrages und/oder des Objekt-Exposés. Die Courtage für den Käufer in Höhe von 4,76 % inkl. MwSt, auf den Kaufpreis, ist bei notariellem Vertragsabschluss verdient und fällig. Grunderwerbssteuer, Notar- und Gerichtskosten trägt der Käufer.
Mehr anzeigen zum Thema Sonstige Angaben
Energieausweis
A+
< 30
A
30 – 50
B
50 – 75
C
75 – 100
D
100 – 130
E
130 – 160
F
160 – 200
G
200 – 250
H
> 250
- Nutzungsart
- Wohnen
- Baujahr lt. Energieausweis
- 1958
- Endenergiebedarf
- 91,5 kWh/(m²a)
- Energieausweis
- Bedarfsausweis
- Energieausweis gültig bis
- 23.09.2034
- Energieeffizienzklasse
- C
- Energieträger
- Elektro
Ihr Ansprechpartner
Herr Markus Geigner
artus Immobilien I Inh. Michael Franz
- Tel.:
- +49 172 8111 433
- E-Mail:
- m.geigner@artus-immobilien.de
Richard-Wagner-Str. 30a
95444 Bayreuth