Mehr anzeigen zum Thema Beschreibung
Beschreibung
Charmantes Mehrfamilienhaus mit Potenzial – ideal für Eigennutzer und Kapitalanleger
Das im Jahr 1968 erbaute Mehrfamilienhaus mit drei Wohneinheiten bietet vielseitige Nutzungsmöglichkeiten und überzeugt durch seinen gepflegten Zustand.
Die Wohnungen im 1. Obergeschoss und im Dachgeschoss wurden in den Jahren 2003 bis 2005 umfassend und hochwertig saniert, während die Erdgeschosswohnung bereits 1996 teilrenoviert wurde. Eine Ölbrennwerttherme aus dem Jahr 2016 sorgt für effiziente Wärmeversorgung.
Die Gewerbeeinheit im Erdgeschoss wurde bis Anfang 2025 als Bäckereiverkaufsfiliale genutzt und bietet vielseitige Umnutzungsmöglichkeiten – etwa als Büro, Physiotherapiepraxis oder auch als barrierefreie Wohnung.
Die Wohnungen punkten durch eine durchdachte Raumaufteilung, helle Zimmer und die gelungene Verbindung von modernisierter Ausstattung und behaglichem Wohnkomfort. Hervorzuheben sind die großzügige Dachterrasse im 1. Obergeschoss sowie ein weiterer Balkon, die zusätzlichen Platz im Freien bieten.
Aktuell sind die Wohnungen im 1. OG und DG zu einer großzügigen Maisonettewohnung verbunden, können jedoch mit geringem Aufwand wieder in zwei separate Einheiten aufgeteilt werden. Die Erdgeschosswohnung ist derzeit vermietet.
Eine Hausverwaltung besteht derzeit nicht, da das Objekt bislang familiär genutzt wurde. Aufteilungsplan und Teilungserklärung liegen bereits vor – somit ist das Haus ideal für Eigennutzer oder Kapitalanleger.
Parkmöglichkeiten:
Direkt vor der Immobilie befinden sich mehrere Stellplätze, zusätzlich stehen im oberen Hof eine Garage, ein Carport und zwei weitere Parkplätze zur Verfügung.
Das im Jahr 1968 erbaute Mehrfamilienhaus mit drei Wohneinheiten bietet vielseitige Nutzungsmöglichkeiten und überzeugt durch seinen gepflegten Zustand.
Die Wohnungen im 1. Obergeschoss und im Dachgeschoss wurden in den Jahren 2003 bis 2005 umfassend und hochwertig saniert, während die Erdgeschosswohnung bereits 1996 teilrenoviert wurde. Eine Ölbrennwerttherme aus dem Jahr 2016 sorgt für effiziente Wärmeversorgung.
Die Gewerbeeinheit im Erdgeschoss wurde bis Anfang 2025 als Bäckereiverkaufsfiliale genutzt und bietet vielseitige Umnutzungsmöglichkeiten – etwa als Büro, Physiotherapiepraxis oder auch als barrierefreie Wohnung.
Die Wohnungen punkten durch eine durchdachte Raumaufteilung, helle Zimmer und die gelungene Verbindung von modernisierter Ausstattung und behaglichem Wohnkomfort. Hervorzuheben sind die großzügige Dachterrasse im 1. Obergeschoss sowie ein weiterer Balkon, die zusätzlichen Platz im Freien bieten.
Aktuell sind die Wohnungen im 1. OG und DG zu einer großzügigen Maisonettewohnung verbunden, können jedoch mit geringem Aufwand wieder in zwei separate Einheiten aufgeteilt werden. Die Erdgeschosswohnung ist derzeit vermietet.
Eine Hausverwaltung besteht derzeit nicht, da das Objekt bislang familiär genutzt wurde. Aufteilungsplan und Teilungserklärung liegen bereits vor – somit ist das Haus ideal für Eigennutzer oder Kapitalanleger.
Parkmöglichkeiten:
Direkt vor der Immobilie befinden sich mehrere Stellplätze, zusätzlich stehen im oberen Hof eine Garage, ein Carport und zwei weitere Parkplätze zur Verfügung.
Mehr anzeigen zum Thema Ausstattung
Ausstattung
• Gesamtwohnfläche: ca. 267 m² mit Dachterrasse und Balkon
Gewerbefläche: ca. 58 m²,
• Grundstücksfläche: ca. 606 m²
• Zimmer: 7
• Bäder: 3
• Gäste-WC: 3
• Außenflächen: große Dachterrasse und Balkon
• Einbauküche im OG: im Kaufpreis enthalten
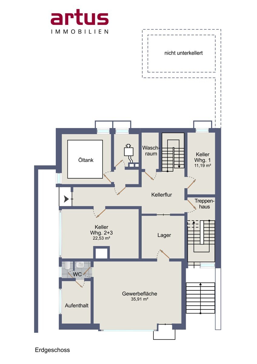
• Keller: großzügige Kellerräume und einem Waschraum
• Garage und Stellplätze: im Kaufpreis enthalten
Gewerbefläche: ca. 58 m²,
• Grundstücksfläche: ca. 606 m²
• Zimmer: 7
• Bäder: 3
• Gäste-WC: 3
• Außenflächen: große Dachterrasse und Balkon
• Einbauküche im OG: im Kaufpreis enthalten
• Keller: großzügige Kellerräume und einem Waschraum
• Garage und Stellplätze: im Kaufpreis enthalten
Mehr anzeigen zum Thema Lage
Lage
Die Immobilie liegt im Stadtteil Roter Hügel zentral genug, dass man in relativ kurzer Zeit in die Innenstadt kommt. Eine Bushaltestelle ist nur 200 m entfernt.
Supermärkte, Apotheke und die Sparkasse befinden sich in fußläufiger Nähe.
Die Stadtrandlage bietet viele Möglichkeiten für Spaziergänge in der Natur.
Durch die erhöhte Lage des Hauses hat man Aussicht über die Stadt, sogar bis zum Fichtelgebirge.
Die Universität Bayreuth ist über öffentliche Verkehrsverbindungen gut erreichbar.
Supermärkte, Apotheke und die Sparkasse befinden sich in fußläufiger Nähe.
Die Stadtrandlage bietet viele Möglichkeiten für Spaziergänge in der Natur.
Durch die erhöhte Lage des Hauses hat man Aussicht über die Stadt, sogar bis zum Fichtelgebirge.
Die Universität Bayreuth ist über öffentliche Verkehrsverbindungen gut erreichbar.
Mehr anzeigen zum Thema Sonstige Angaben
Sonstige Angaben
Der Makler-Vertrag mit uns und/oder unserem Beauftragten kommt durch die Bestätigung der Inanspruchnahme unserer Maklertätigkeit in Textform zustande, wie z. B. insbesondere die Unterschrift des Suchkundenvertrages und/oder des Objekt-Exposés. Die Courtage ist regelmäßig für beide Parteien (Eigentümer und Käufer) in Höhe von 3,57 % inkl. MwSt, auf den Kaufpreis, bei notariellem Vertragsabschluss verdient und fällig. Grunderwerbssteuer, Notar- und Gerichtskosten trägt der Käufer.
Mehr anzeigen zum Thema Sonstige Angaben
Energieausweis
A+
< 30
A
30 – 50
B
50 – 75
C
75 – 100
D
100 – 130
E
130 – 160
F
160 – 200
G
200 – 250
H
> 250
- Nutzungsart
- Wohnen
- Baujahr lt. Energieausweis
- 2016
- Endenergieverbrauch
- 116,3 kWh/(m²a)
- Energieausweis
- Verbrauchsausweis
- Energieausweis gültig bis
- 15.09.2035
- Energieeffizienzklasse
- D
- Energieträger
- Öl
Links
Ihre Ansprechpartnerin
Frau Ina Schrievers
artus Immobilien I Inh. Michael Franz
- Tel.:
- +49 921 79 313 410
- E-Mail:
- i.schrievers@artus-immobilien.de
Richard-Wagner-Str. 30a
95444 Bayreuth